Sapata - Cirsoc Ejemplo 2

SAPATA EXCENTRICA

Este exemplo tem como base o Ejemplo 87 do livro Introduccion al Cálculo de Hormigon Estructural - 2. Edicion (página 575). Se trata do dimensionamento de uma sapata e suas verificações. O modelo será lançado tb no software TQS com os mesmos esforços para comparação de resultados de flexão na sapata.

Dados:

Concreto: H-20

Aço: ADN 420

q = 2,0 kg/cm2


456c1bccb8268ad12e9aec050f15d681.jpeg

6d37ddc5c86ab4c83b0f8c2c4f714b04.jpeg


956413ef4160b714f70ea23cd1a580cd.jpeg


Dimensionamento a Flexão - Cirsoc:

Direção y:

8f2bd6c5aa28ae8264515d077a5e0809.png

9e8b5b6961dd1a6c8f5beb2823b42ab2.png

c679da9b98a10b7ff084271aad632a89.png

10d1a72c7d1fe7d1455d69e404b3e2b3.png

89f24d81dc567cccc09ad2d6fab06027.png

05c691d9ea465edd9a8267d0744e0c98.png

b446a133c586c6c3e6afb62797c1782f.png

a802107ba40dcde4220ac53f541cbebe.png


Direção x:

2fe87baed48c4b2933c10888a2d6cb81.png

760b81e13b868d73581c45f8b83f0457.png

a023a3032a32e22ab2fe5f3fc2096ce2.png

a2b2d4bef8a5c8201d04d845107217d7.png

074dc37c2dfc48a3f2e0130cf821a419.png

54382580fe82381ac8784d6e95dfd5f9.png

b446a133c586c6c3e6afb62797c1782f.png

7d45530cb4a5095d4ac5094069ee7266.png



Dimensionamento a Flexão - TQS:


8370b84edf95b612330670a3694a8a6a.jpeg

8d898ea1267319977381a52bb9481135.jpeg


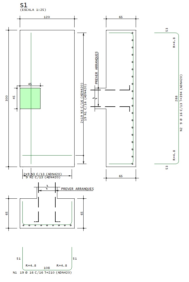
Desenho 2D:

15a58d2b9e0221d87d11082f83f32060.jpeg

Detalhe 3D:

26872158aa648c49c80b62ac06ccbb1e.jpeg




Conclusão:

Os resultados obtidos são muito semelhantes entre os apresentados pelo exemplo e o modelo feito no software TQS.